BLOOMING MAISON川越市寺尾1号棟

14.8万円 管理/共益費 -

埼玉県川越市大字寺尾267-1

東武東上線「新河岸」駅徒歩16分

東武東上線「上福岡」駅徒歩26分

川越線「南古谷」駅徒歩35分

価格
14.8万円 管理/共益費 -
間取り/面積
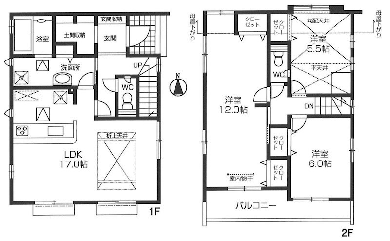
3LDK/100.48㎡
所在地
埼玉県川越市大字寺尾267-1
築年
2024年5月(築1年)
駐車
有(2台)
交通

東武東上線新河岸」駅 徒歩16分

東武東上線上福岡」駅 徒歩26分

川越線南古谷」駅 徒歩35分

BLOOMING MAISON川越市寺尾1号棟 の基本情報

物件名
BLOOMING MAISON川越市寺尾1号棟
価格
14.8万円
管理/共益費
-
築年月
2024年5月(築1年)
総戸数
1戸
所在地
埼玉県川越市大字寺尾267-1
交通

東武東上線新河岸」駅 徒歩16分

東武東上線上福岡」駅 徒歩26分

川越線南古谷」駅 徒歩35分

BLOOMING MAISON川越市寺尾1号棟 の詳細情報

設備条件
  • 閑静な住宅地
  • 駐輪場
  • バイク置場あり
  • 駐車2台可
設備(その他)
    -
駐車場/月額
有(2台)/0円
用途地域
-
戸数
1戸 / -
取引態様
一般媒介
備考
こちらは一戸建ての物件です。ニーズの高い、2024年築の物件で、オシャレな室内が魅力的。こちらの物件には自走式駐車場があります。「BLOOMING MAISON川越市寺尾1号棟 」のここがイチオシ。東武東上線新河岸周辺で戸建て探しのご依頼をされるなら、HILO HOUSEまでお問い合わせ下さい。049-228-5550より連絡をお待ちしております。

BLOOMING MAISON川越市寺尾1号棟 のコメント(おすすめポイント)

こちらの一戸建てには自走式駐車場があります。こちらは一戸建ての物件です。アレルギー予防に適した、通気性の良い安心の一戸建てです。健康な体は新鮮な空気を吸うところから。ぜひ一度見ていただきたい、「BLOOMING MAISON川越市寺尾1号棟 」です。川越市に移住をする予定なら、HILO HOUSEまでご連絡下さい。お問い合わせは049-228-5550までお待ちしております。

BLOOMING MAISON川越市寺尾1号棟 で募集中の物件

  1. 1-2階

    30.39坪 (100.48㎡)

    14.8万円(4870.02円/坪)

周辺施設

  • セブンイレブン 川越砂店の画像

    コンビニエンスストア

    セブンイレブン 川越砂店

    821m(11分)

  • 川越砂郵便局の画像

    郵便局

    川越砂郵便局

    888m(12分)

  • コモディイイダ 新河岸店の画像

    スーパー

    コモディイイダ 新河岸店

    957m(12分)

  • 武蔵野銀行新河岸支店の画像

    銀行

    武蔵野銀行新河岸支店

    1128m(15分)

  • ディスカウントドラッグコスモス新河岸店の画像

    ドラッグストア

    ディスカウントドラッグコスモス新河岸店

    1207m(16分)

  • ファミリーマート 川越牛子店の画像

    コンビニエンスストア

    ファミリーマート 川越牛子店

    1221m(16分)

  • 埼玉りそな銀行 新河岸出張所(母店:川越支店)の画像

    銀行

    埼玉りそな銀行 新河岸出張所(母店:川越支店)

    1298m(17分)

  • コモディイイダ 上福岡店の画像

    スーパー

    コモディイイダ 上福岡店

    1374m(18分)

  • ドラッグセイムス 諏訪町店の画像

    ドラッグストア

    ドラッグセイムス 諏訪町店

    1463m(19分)

  • 川越清水郵便局の画像

    郵便局

    川越清水郵便局

    1659m(21分)

近隣の物件

  1. 川越市岸町1丁目

    2DK (40.10㎡)

    5.9万円

  2. 川越市大字小室

    1LDK (42.50㎡)

    6.8万円

  3. 川越市中原町1丁目

    3LDK (70.32㎡)

    14.7万円

  4. 川越市大手町

    4LDK (90.78㎡)

    14.5万円

BLOOMING MAISON川越市寺尾1号棟

お気軽にお問い合わせください

無料お問い合わせ

HILO HOUSE [T-GROUP LLC.]

049-228-5550

10時00分~18時30分

(休:火曜日、第1・3水曜日)